UNIQUE
  • Beranda
  • Pelayanan Publik
  • Profil Kecamatan
  • Potensi Wilayah
  • Giat

Gambaran Umum Kecamatan

  • Batas Wilayah
    Batas Wilayah
    Mandalajati berdiri sejak tahun 2006 sesuai dengan Peraturan Daerah Kota Bandung Nomor 06 Tahun 2006 Tentang Pemekaran dan Pembentukan Wilayah Kerja Kecamatan Dan Kelurahan Di Lingkungan Pemerintah Kota Bandung. Kecamatan Mandalajati terletak pada koordinat 107°41’30” BT-107°40’30” BT dan 6°53’30” LU-6°54’30 LU, dan berada di Timur Laut Kota Bandung dengan jarak 9,6 KM.
    Secara administratif Kecamatan Mandalajati dibatasi oleh :
    Utara : Kec. Cimenyan, Kab. Bandung
    Selatan : Kec. Arcamanik, Kecamatan Antapani
    Barat : Kecamatan Cibeunying Kidul
    Timur : Kecamatan Ujung Berung
  • Kondisi Geografis
    Kondisi Geografis
    Secara geografis Kecamatan Mandalajati memiliki bentuk wilayah datar sebesar 60% dan bentuk berombak sebesar 40% dari total keseluruhan Luas Wilayah. Ditinjau dari sudut ketinggian tanah, Kecamatan Mandalajati berada pada ketinggian 700 m diatas permukaan air laut. Suhu maksimum dan minimum di Kecamatan Mandalajati berkisar 19 – 30 oC, sedangkan dilihat dari segi hujan berkisar 2.400 mm/th dan jumlah hari dengan curah hujan yang terbanyak sebesar 90 hari.
  • Tata Guna Lahan
    Penggunaan Lahan
    Kecamatan Mandalajati mempunyai luas 476,97 Ha dengan penggunaan areal tanah, sbb:
    1. Tanah sawah 9,78 ha
    2. Tanah Kering 356,71 ha
    3. Tanah Basah 36,73 ha
    4. Fasilitas Umum 73,75 ha
  • Luas Wilayah
    Kecamatan Mandalajati terdiri dari 53 RW dan 312 RT dengan pembagian jumlah RT dan luas wilayah RW, sbb :
    Kelurahan Jatihandap = 167,60 ha
    Kelurahan Jatihandap = 167,60 ha
    Kelurahan Jatihandap = 167,60 ha
    Kelurahan Jatihandap = 167,60 ha
  • Struktur Organisasi
    Struktur Organisasi
  • Peta Wilayah
    Peta Wilayah
    Batas_RW_01 (2).jpg
    Batas_RW_02.jpg
    Batas_RW_03.jpg
    Batas_RW_04.jpg
    Batas_RW_05.jpg
    Batas_RW_06.jpg
    Batas_RW_07.jpg
    Batas_RW_08.jpg
    Batas_RW_09.jpg
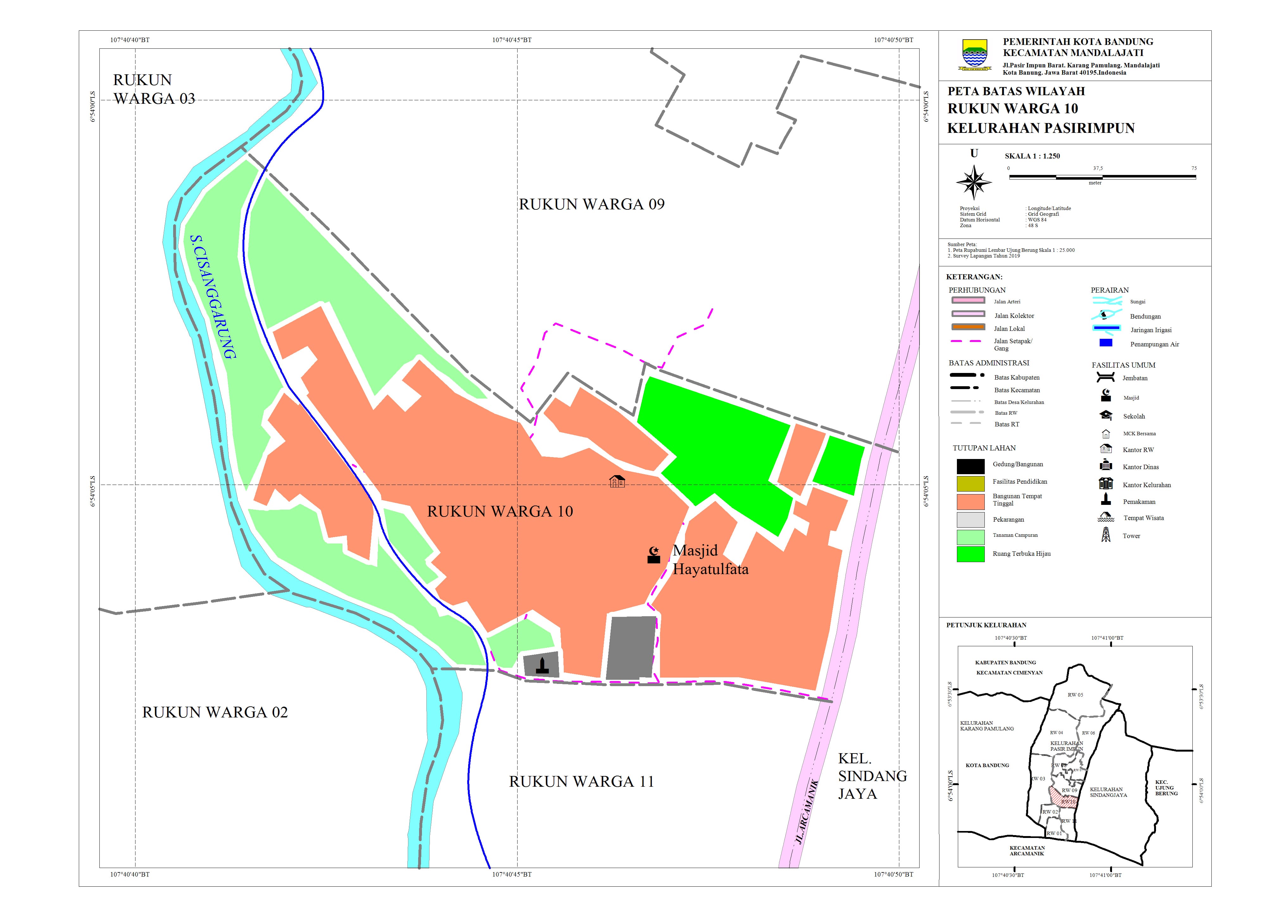
    Batas_RW_10.jpg
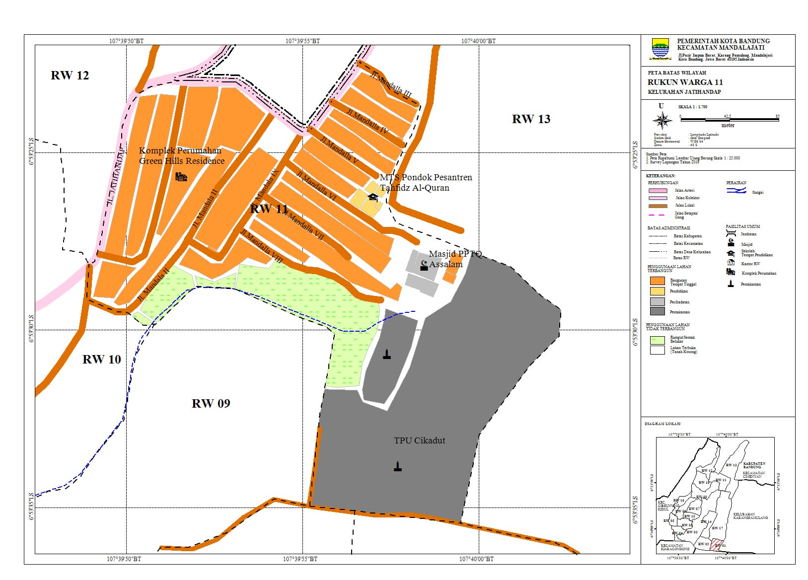
    Batas_RW_11.jpg
    Batas_RW_12.jpg
    Batas_RW_13.jpg
    Batas_kelurahan_karpam.jpg
    Peta Kelurahan Pasir Impun.jpg
    Peta PI Batas RW 01.jpg
    Peta PI Batas RW 02.jpg
    Peta PI Batas RW 03.jpg
    Peta PI Batas RW 04.jpg
    Peta PI Batas RW 05.jpg
    Peta PI Batas RW 06.jpg
    Peta PI Batas RW 07.jpg
    Peta PI Batas RW 08.jpg
    Peta PI Batas RW 09.jpg
    Peta PI Batas RW 10.jpg
    Peta PI Batas RW 11.jpg
    PETA_ADMIN_RW_11.jpg
    PETA_ADMIN_RW_10.jpg
    PETA_ADMIN_RW_09.jpg
    PETA_ADMIN_RW_08.jpg
    PETA_ADMIN_RW_07.jpg
    Peta Kelurahan Jatihandap.jpg
    Peta JTH Batas_RW01.jpg
    Peta JTH Batas_RW15.jpg
    Peta JTH Batas_RW16.jpg
    Peta JTH Batas_RW17.jpg
    Peta JTH Batas_RW10.jpg
    Peta JTH Batas_RW11.jpg
    Peta JTH Batas_RW13.jpg
    Peta JTH Batas_RW14.jpg
    Peta JTH Batas_RW06.jpg
    Peta JTH Batas_RW07.jpg
    Peta JTH Batas_RW08.jpg
    Peta JTH Batas_RW09.jpg
    Peta JTH Batas_RW02.jpg
    Peta JTH Batas_RW03.jpg
    Peta JTH Batas_RW04.jpg
    Peta JTH Batas_RW05.jpg
    Peta JTH Batas_RW12.jpg
    Peta kel.Sindangjaya.jpg
    Peta SJ Batas RW06.jpg
    Peta SJ Batas RW05.jpg
    Peta SJ Batas RW04.jpg
    Peta SJ Batas RW03.jpg
    Peta SJ Batas RW02.jpg
    Peta SJ Batas RW01.jpg
    Peta SJ Batas RW12.jpg
    Peta SJ Batas RW11.jpg
    Peta SJ Batas RW10.jpg
    Peta SJ Batas RW09.jpg
    Peta SJ Batas RW08.jpg
    Peta SJ Batas RW07.jpg
    PETA KAWASAN RAWAN BENCANA_11zon.jpg
    PETA RAWAN LONGSOR_11zon.jpg
    PETA GERAKAN TANAH_11zon.jpg
    PETA BAHAYA BANJIR_11zon.jpg
    PETA BAHAYA GEMPA BUMI_11zon.jpg
  • Prestasi
    Prestasi
    No Nama Prestasi Foto
    1 Surat Keterangan Nomor B/KI.01/1162-DISKOMINFO/X/2023 Tentang Rekomendasi Teknis Wargapedia
    2 Presentasi Wargapedia Di Hadapan Kepala Dinas Komunikasi Dan Informatika Kota Bandung DHMZghFmfnS41R6ZkjBwTj9NQHn6tRWNfPfO2ZnG.jpg
SPBE Pada
Kecamatan Mandalajati

Wargapedia

  • Pendataan Kependudukan, yaitu penduduk sebagai individu, warga sebagai anggota keluarga dan dimana warga itu menetap.

Sipitung

  • Sistem Pengendalian Internal Keuangan, Barang,Aset Dan Arsip

© Copyrights dummieling@gmail.com 2023. All rights reserved.
Designed by dummieling@gmail.com